Einzelapartment
Du möchtest etwas über die Apartments im Wohnheim erfahren? 17m² stehen dir zur Verfügung. Das ist nicht viel, aber manchmal is weniger auch mehr. Wenn du dein Apartment erstmal richtig eingerichtet hast, kann es hier wirklich sehr gemütlich werden.

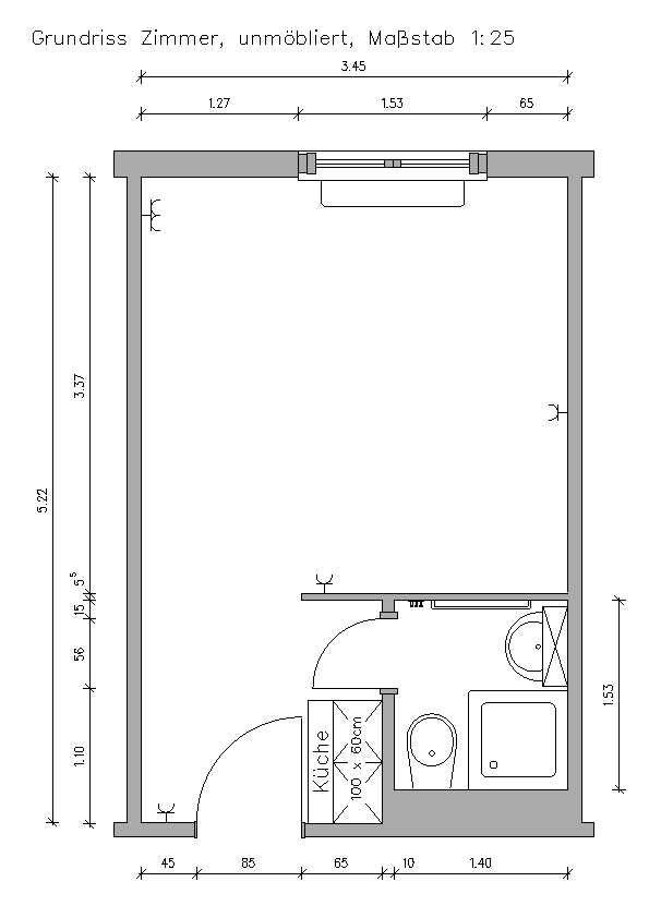
Falls du dir schonmal passende Möbel für dein Apartment aussuchen möchtest, oder du mal genau nachrechnen möchtest, kannst du dir hier die Apartmentpläne anschauen oder als .pdf herunterladen. Achtung: Die Breite der Heizkörper kann von Apartment zu Apartment variieren.
Apartment (Abwicklung, unmöbliert)
Apartment (Abwicklung, möbliert)
Apartment (Grundriss, unmöbliert)
Apartment (Grundriss, möbliert)







